Waterloo Battery Building Development Agreement: Historic Preservation Drives Downtown Waterloo Iowa Revitalization
By Jared Hottle | Published: 2025-12-17T15:50:35.471Z
Project Overview: Waterloo Iowa Downtown Development Central Battery Building Redevelopment
Concept picture of the battery building
Project Name: Central Battery Building Historic Rehabilitation
Location: Downtown Waterloo, Iowa - West Side District
Investment: $6.63 million mixed-use development
Economic Impact: $11.7 million total impact | 119 jobs created
Timeline: Critical repairs immediate; full redevelopment begins in 18-24 months
Development Type: Historic preservation, mixed-use adaptive reuse
Features:
- 19 residential apartments (workforce housing)
- Ground-floor café (commercial retail space)
- Co-working space
- Balconies and rooftop amenities
The Challenge: Preserving Historic Architecture in Waterloo Iowa Downtown Development
Structural Issues in Historic Building Rehabilitation:
- Significant wall stability concerns
- Deteriorating building condition requiring immediate intervention
- Complex historic preservation requirements
- Environmental Studies
Financing Gap for Historic Preservation Projects:
- Traditional financing insufficient for historic rehabilitation costs
- High preservation costs vs. market realities in downtown Waterloo
- Need for creative financing solutions
Community Impact Without Intervention:
- Potential demolition of historic Waterloo landmark
- Loss of architectural heritage on west side
- Missing catalyst for west side revitalization and downtown development
The Solution: Innovative Public-Private Partnership for Historic Preservation
Concept sketch of the Central Battery Building
Strategic Public-Private Partnership Structure:
- Building purchase price: $1
- City incentives for downtown development: $800,000+
- Focus: In-fill development and critical structural repairs
- Leverage ratio: 10-to-1 return on public investment (every $1 brings $10+)
Layered Tax Credit Financing Strategy:
- Federal Historic Tax Credits
- New Markets Tax Credits
- Workforce Housing Tax Credits
- Private capital investment
- Total leverage: $6+ million in state, federal, and private funding
Phased Historic Rehabilitation Approach:
- Phase 1: Critical structural repairs (immediate start)
- Phase 2: Full adaptive reuse redevelopment begins (18-24 months)
- Experienced development team managing complex historic preservation project
Developer Confidence in Waterloo Market: Experienced historic preservation developers committed to project success, citing robust financing structure and building's architectural integrity
Results and Impact: Economic Development Through Historic Preservation
The Battery Building redevelopment delivers measurable benefits to downtown Waterloo and demonstrates the power of strategic historic preservation investment:
Economic Impact of Historic Preservation:
- Total Economic Impact: $11.7 million generated from $6.63 million investment
- Job Creation: 119 jobs in Waterloo
- ROI for Public Investment: Exceptional return demonstrating effective use of city development incentives
Sustainable Mixed-Use Development Model:
- Combining residential apartments, commercial café space, co-working facilities, and rooftop amenities
- Creates self-sustaining downtown ecosystem
- Activates street level with ground-floor retail
- Attracts residents and visitors to west side district
Catalyst for West Side Revitalization:
- Battery Building serves as cornerstone for broader west side redevelopment
- Signals downtown Waterloo readiness for renewed investment
- Anchors future economic development in historic district
Historic Preservation Success in Iowa:
- Preserves architectural character and community heritage
- Demonstrates adaptive reuse viability for historic buildings
- Model for future historic preservation projects in Iowa
Key Takeaways: Best Practices for Historic Preservation and Downtown Development
- Historic Preservation Opportunity: The Central Battery Building represents a critical chance to preserve architectural heritage while supporting downtown revitalization.
- Significant Economic Impact: The $6.63 million historic rehabilitation project generates $11.7 million in total economic impact and creates 119 jobs, demonstrating substantial return on investment for the community.
- Mixed-Use Development Model: The plan for 19 apartments, café space, co-working facilities, and rooftop amenities creates a sustainable mixed-use environment that activates downtown Waterloo.
- Public-Private Partnership Success: The building will sell for one dollar with city incentives around $800,000 for in-fill development and critical repairs. Each dollar invested locally brings in more than ten dollars in state, federal, and private funding through tax credits.
- West Side Revitalization Catalyst: The Battery Building project represents a turning point for west side redevelopment, anchoring future investment in downtown Waterloo's historic district.
- Viable Development Strategy: Despite structural challenges including wall stability concerns, experienced historic preservation developers and consultants have expressed confidence in successfully completing the rehabilitation. The development team will utilize historic tax credits, new-market tax credits, and workforce housing tax credits, with critical repair work preceding full redevelopment in 18 to 24 months.
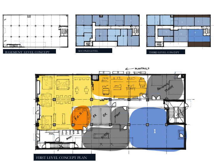
Floorplan concept for battery building
Older Picture Central Battery Building
About This Historic Preservation Project
The Battery Building redevelopment in Waterloo, Iowa demonstrates how strategic public investment in historic preservation can catalyze broader economic development while maintaining community character. This case study showcases successful public-private partnership models for downtown revitalization and adaptive reuse of historic buildings.
Related Topics: Historic preservation Iowa, downtown development incentives, mixed-use redevelopment, Waterloo economic development, adaptive reuse projects, historic tax credits, public-private partnerships, downtown revitalization strategies
Contact: Jared Hottle | HottleRealEstate.Com | 319-288-5382